click to enable zoom
loading...
We didn't find any results
open map
View
Roadmap Satellite Hybrid Terrain
My Location Fullscreen Prev Next

Advanced Search

More Search Options
We found 0 results. View results

14675 1 Street Ne Calgary, Alberta T3P 0V3

2 Bedroom 3 Bathroom 1,210 ft2
None Forced Air

$375,500.00

Maintenance, Insurance, Property Management, Reserve Fund Contributions

$248.00 Monthly

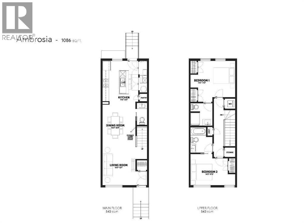
Ambrosia at ZEN Livingston – Offering thoughtfully designed living space, this 2 BED, 2.5 bath home features TRIPLE-PANE windows, advanced insulation, and a rough-in for solar panels – all contributing to year-round comfort. The OPEN CONCEPT main floor showcases Luxury VINYL PLANK flooring, pot lights with knock-down ceilings, and a BRIGHT LIVING AND DINING area that flows into your BACKYARD that is FULLY FENCED, perfect for those with kids, pets or wanting to enjoy some privacy - complete with BBQ GAS LINE, landscaping, and irrigation. The modern kitchen features white QUARTZ COUNTERTOPS and a 6-piece Whirlpool appliance package. Upstairs, you'll find two spacious bedrooms including a primary bedroom with an ensuite bathroom, and upstairs laundry. Enjoy HARDIE BOARD siding (hail/fire-resistant), and be part of a vibrant community just steps from the Livingston Hub with splash park, rink, courts & more! POSSESSION available tentatively in May, 2026! Photos are representative. (id:63844)

Property Details

MLS® Number A2285488
Property Type Single Family
Community Name Livingston
Amenities Near By Airport, Park, Playground, Schools, Shopping
Community Features Pets Allowed
Parking Space Total 1
Plan Tbd
Structure None

Building

Bathroom Total 3
Bedrooms Above Ground 2
Bedrooms Total 2
Appliances Washer, Refrigerator, Range - Electric, Dishwasher, Dryer, Microwave Range Hood Combo
Basement Type None
Constructed Date 2026
Construction Material Wood Frame
Construction Style Attachment Attached
Cooling Type None
Flooring Type Carpeted, Vinyl Plank
Foundation Type Poured Concrete
Half Bath Total 1
Heating Fuel Natural Gas
Heating Type Forced Air
Stories Total 2
Size Interior 1,210 Ft2
Total Finished Area 1209.82 Sqft
Type Row / Townhouse

Land

Acreage No
Fence Type Fence
Land Amenities Airport, Park, Playground, Schools, Shopping
Size Total Text Unknown
Zoning Description Tbd

Rooms

Level Type Dimensions
Main Level Kitchen 11.25 Ft x 13.25 Ft
Main Level Dining Room 10.42 Ft x 12.67 Ft
Main Level Living Room 10.42 Ft x 12.08 Ft
Main Level 2pc Bathroom .00 Ft x .00 Ft
Upper Level Bedroom 14.00 Ft x 11.42 Ft
Upper Level 3pc Bathroom .00 Ft x .00 Ft
Upper Level Bedroom 14.00 Ft x 9.83 Ft
Upper Level 4pc Bathroom .00 Ft x .00 Ft

Contact Us

Contact us for more information

Generating Captcha

Bode Platform Inc.
1709 - 21 Avenue Sw
Calgary, Alberta T2T 0N2

(587) 602-3307
bode.ca/

Your Favourites

 

No Favourites Found

 

Compare Listings