click to enable zoom
loading...
We didn't find any results
open map
View
Roadmap Satellite Hybrid Terrain
My Location Fullscreen Prev Next

Advanced Search

More Search Options
We found 0 results. View results

109 & 102, 3550 45 Street Sw Calgary, Alberta T3E 3V2

4 Bedroom 6 Bathroom 1,620 ft2
See Remarks Forced Air

$835,000.00

Maintenance, Common Area Maintenance, Insurance, Reserve Fund Contributions

$526.00 Monthly

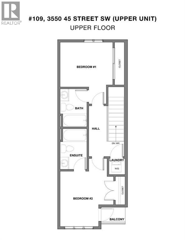
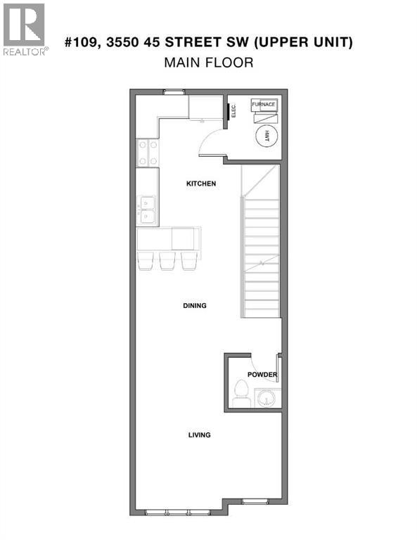
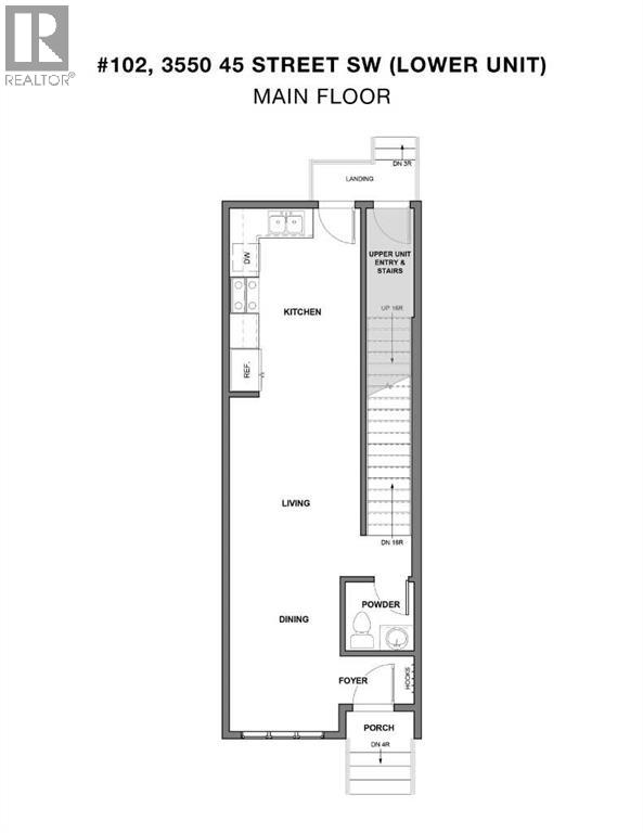
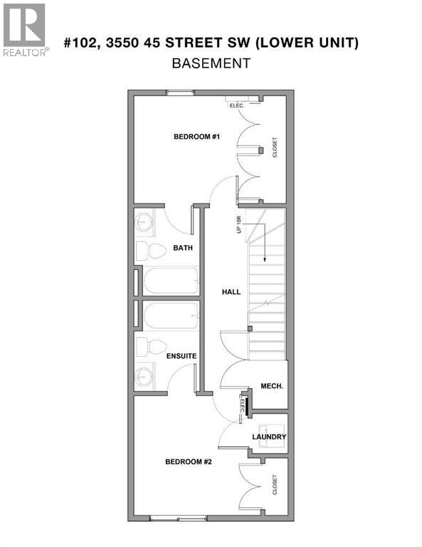
Incredible opportunity for a BRAND NEW, MOVE-IN READY TOWNHOME in Glenbrook! This townhome project is AIRBNB FRIENDLY, plus first-time home buyers could qualify for up to a 100% GST REBATE* on their purchase! This listing includes TWO titled units: one upper-level 2-storey unit (#109) featuring nearly 1,100 sq ft, with 2 beds, 2.5 baths, and a single detached garage, PLUS one lower-level unit directly below (#102) boasting a sunny main floor plus a FULLY FINISHED BASEMENT totalling nearly 1,000 sq ft of developed living space, with 2 beds & 2.5 baths. Live in one and rent the other, or combine both for personal use and have a 4-bedroom townhome with over 2,000 sq ft of living space! Both units feature a sunny and bright open-concept living space, with sleek, low-maintenance luxury vinyl plank (LVP) flooring and large windows. The fully equipped modern kitchens boast dual-tone slab-style cabinetry, quartz countertops, and Samsung stainless steel appliances, including a French-door refrigerator and ceramic-top stove. Completing the main floor of both units is a spacious dining area perfect for family meals and entertaining, a living room with large windows for ample natural light and a stylish 2-piece powder room. The upper-unit level (#109) features a lacquered spindled railing leading to the sunny upper floor, where 2 bedrooms and 2 full bathrooms await. The primary bedroom boasts a 3pc ensuite and a private balcony. Down the hall is a well-sized 2nd bedroom boasting easy access to the main 4pc bathroom. Each bathroom features custom cabinetry, quartz countertops, undermount sinks, and fully tiled showers. The lower-level unit (#102) fully developed basement features 2 bedrooms and 2 full bathrooms. Each bathroom boasts custom cabinetry, quartz counters, undermount sinks, and tiled tub/showers. Plus, both units feature a convenient in-suite laundry closet with a stacked washer/dryer. Durable and stylish, the exterior features Hardie Board and Smart Board detailing, and brushed concrete steps and walks. Located in the heart of the sought-after SW inner-city community of Glenbrook, these brand-new townhomes boast a fantastic location right across the street from Glenbrook School and the Glenbrook Community Association. A number of major amenities are located within an easy 15-min walk, including Safeway, Glamorgan Bakery, and multiple restaurants including Richmond’s Pub. Plus, nearly every imaginable amenity can be found in nearby Westhills and Signal Hill Centres which are just a 6 minute drive away. Sarcee Trail and Richmond Rd are both readily accessible. *Interior photos are taken from a similar project by the same builder - details may vary. *Buyers must qualify for the GST rebate program, enquire for details. *VISIT MULTIMEDIA LINK FOR FULL DETAILS INCLUDING FLOORPLANS* (id:63844)

Property Details

MLS® Number A2282737
Property Type Single Family
Community Name Glenbrook
Amenities Near By Park, Playground, Recreation Nearby, Schools, Shopping
Features See Remarks
Parking Space Total 1
Plan Tbv

Building

Bathroom Total 6
Bedrooms Above Ground 2
Bedrooms Below Ground 2
Bedrooms Total 4
Appliances Refrigerator, Dishwasher, Stove, Microwave Range Hood Combo, Washer/dryer Stack-up
Basement Development Finished
Basement Features Separate Entrance, Suite
Basement Type Full (finished)
Constructed Date 2025
Construction Material Poured Concrete, Wood Frame
Construction Style Attachment Attached
Cooling Type See Remarks
Exterior Finish Concrete
Flooring Type Tile, Vinyl Plank
Foundation Type Poured Concrete
Half Bath Total 2
Heating Type Forced Air
Stories Total 3
Size Interior 1,620 Ft2
Total Finished Area 1620 Sqft
Type Row / Townhouse

Parking

Detached Garage 1

Land

Acreage No
Fence Type Not Fenced
Land Amenities Park, Playground, Recreation Nearby, Schools, Shopping
Size Total Text Unknown
Zoning Description H-go

Rooms

Level Type Dimensions
Second Level Living Room 15.83 Ft x 13.17 Ft
Second Level Kitchen 15.00 Ft x 9.92 Ft
Second Level Dining Room 12.75 Ft x 9.92 Ft
Second Level 2pc Bathroom .00 Ft x .00 Ft
Third Level Primary Bedroom 11.42 Ft x 11.00 Ft
Third Level Bedroom 10.83 Ft x 9.25 Ft
Third Level 4pc Bathroom .00 Ft x .00 Ft
Third Level 3pc Bathroom .00 Ft x .00 Ft
Basement Primary Bedroom 10.42 Ft x 9.33 Ft
Basement Bedroom 11.00 Ft x 9.33 Ft
Basement 4pc Bathroom .00 Ft x .00 Ft
Basement 4pc Bathroom .00 Ft x .00 Ft
Main Level Living Room 13.42 Ft x 9.50 Ft
Main Level Kitchen 13.33 Ft x 9.50 Ft
Main Level Dining Room 11.25 Ft x 8.00 Ft
Main Level 2pc Bathroom .00 Ft x .00 Ft

Contact Us

Contact us for more information

Generating Captcha

RE/MAX House Of Real Estate
4034 16 Street Sw
Calgary, Alberta T2T 4H4

(403) 287-3880
(403) 287-3876

Your Favourites

 

No Favourites Found

 

Compare Listings